Ventetid: fra 1 år og op

Velkommen til Sønderby

Boligafdelingen Sønderby består af etagehuse og rækkehuse i gule sten med lyse tage.

Rækkehusene har en karnap, som giver et smukt udsyn fra stuen. I Sønderby er der et fælleshus, med et moderne fællesvaskeri, beboerlokaler og selskabslokaler.

Der er en ældreklub i afdelingen og der afholdes årlige beboerarrangementer.

Skole og børneinstitutioner ligger tæt ved. Der er gode indkøbsmuligheder i City 2, som ligger nær Sønderby. Den kollektive trafik er god.

Der er større, fælles grønne områder, som gør boligafdelingen åben og venlig.

Vand er inkluderet i huslejen. I de angivne huslejetal nedenfor er huslejen således angivet inklusiv vandudgifter.

Om afdelingen

Energimærke

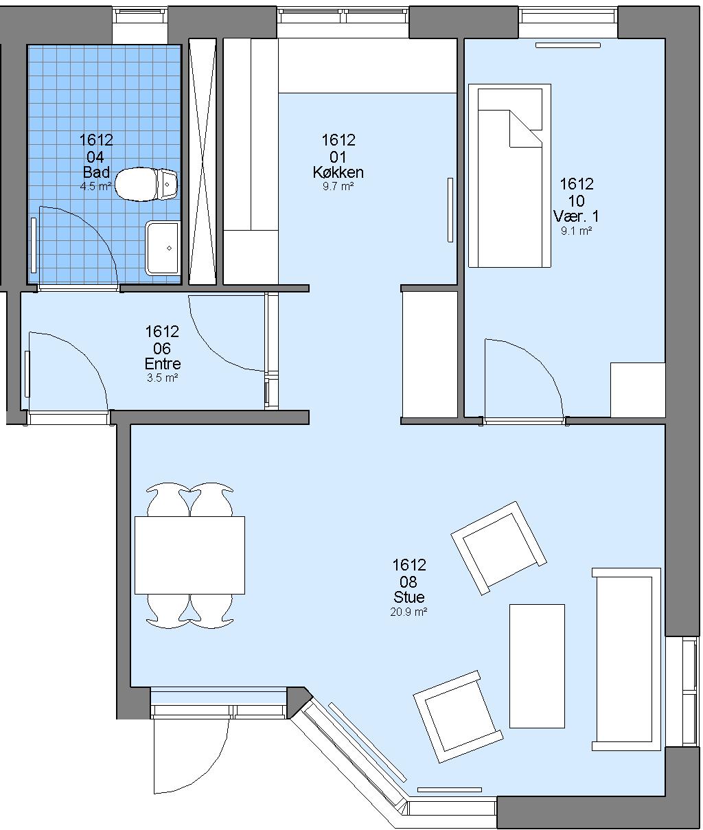
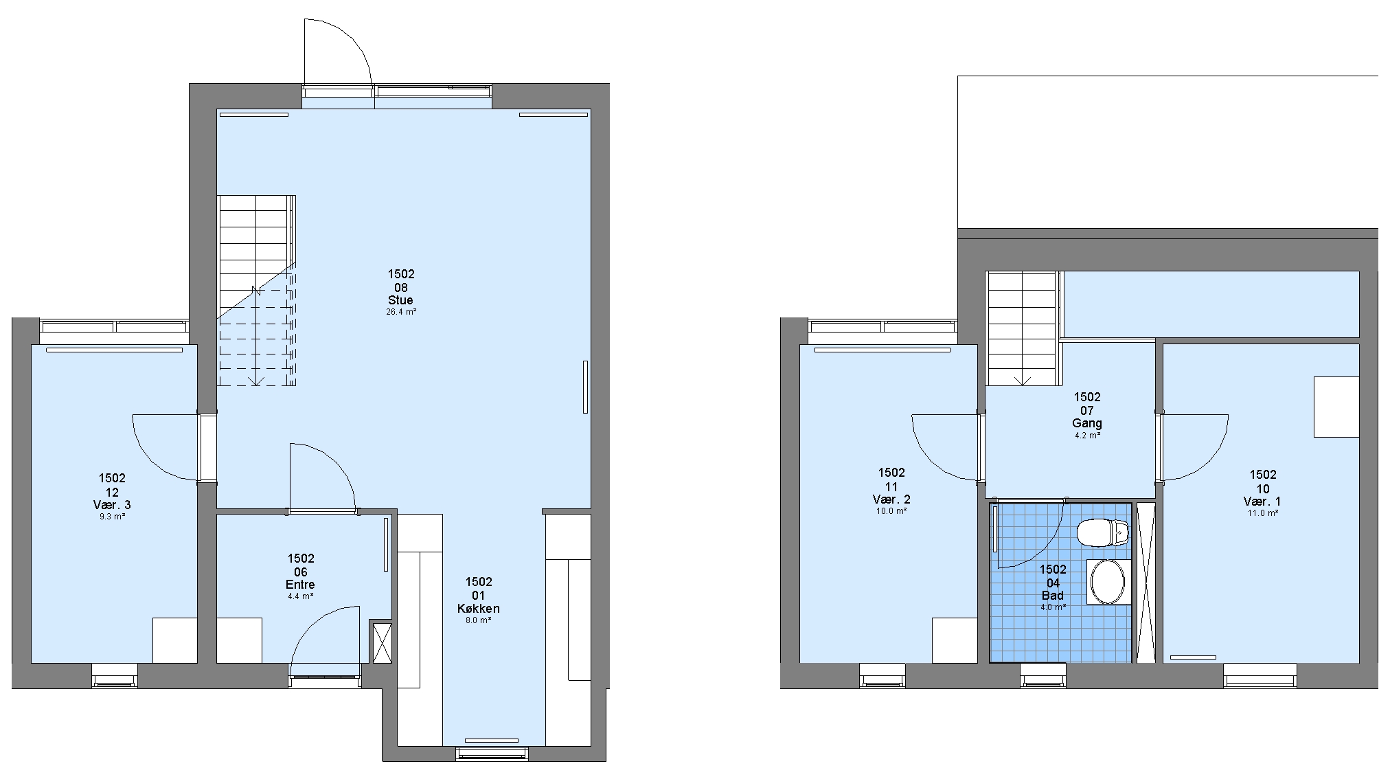
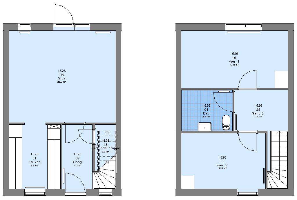
Alle boligtyper i Sønderby
Se placering på kort
Vis Vej
Beløbene i kolonnen forbrug er vejledende og kan variere, da de er baseret på tidligere beboeres forbrug.