Velkommen til Solvænget Nord
Rækkehuse med have.

Afdeling Solvænget Nord er opført i 1986 med 12 boliger i et og to plan med egen have.
Boligafdelingen hører under Karlstrup Boligselskab, der har to afdelinger, én på hver sin side af S-banen. Afdelingerne ligger i Solrød Kommune, og kan let tilgås med bus eller tog.
I afdeling Druemarken, er der et selskabslokale som også kan lejes af afdeling Solvænget Nords beboere.
Afdelingen er opvarmet med naturgas.
Type | Størrelse | Husleje | Forbrug | Indskud | Ca. ventetid | Plantegning | Antal | Opskrivning |
---|---|---|---|---|---|---|---|---|
Rækkehus
Type: 3321
|
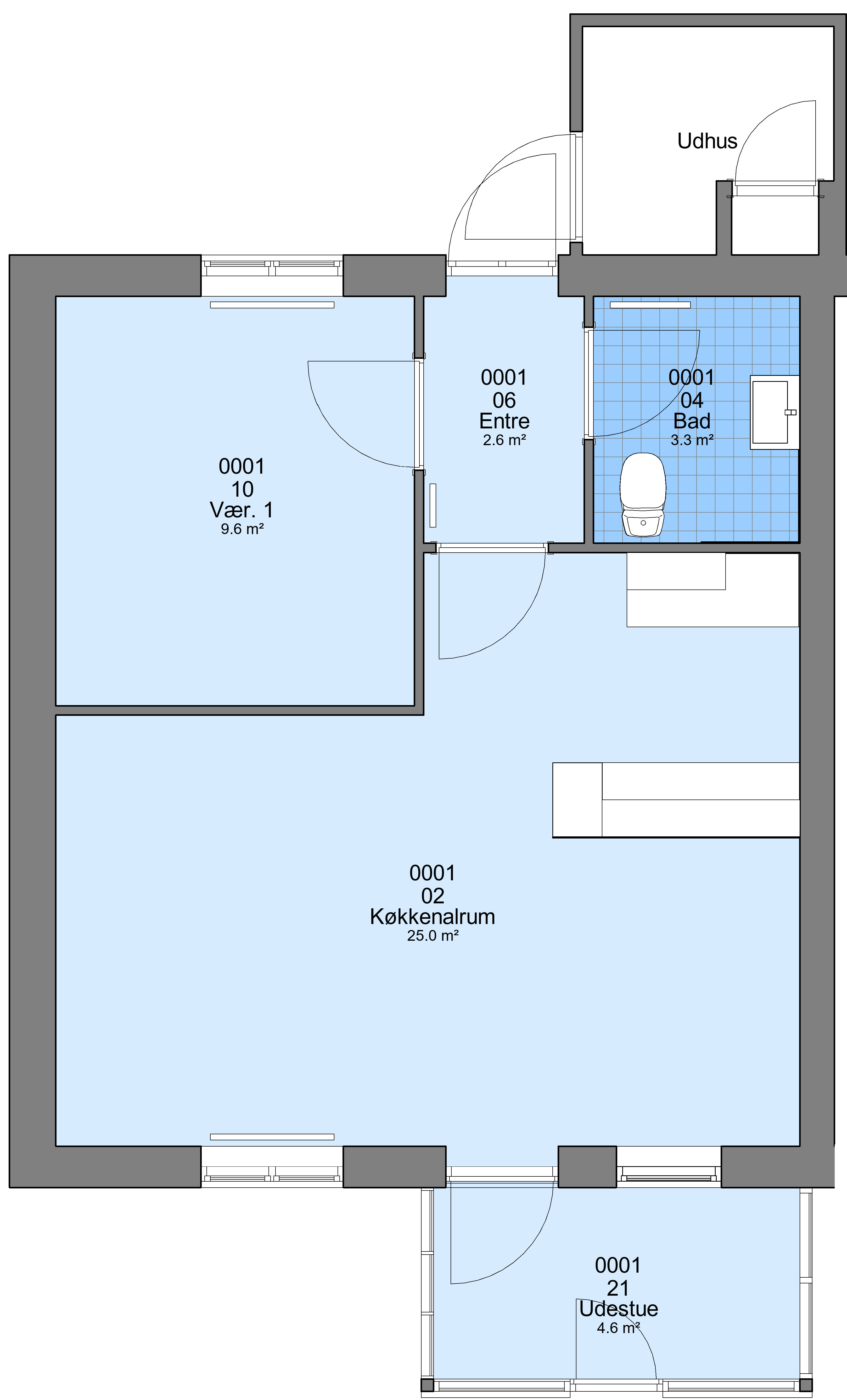
2 rum
49 kvm |
5.450 | 0 | 11.290 | fra 30 år og op | 7 | ||
Rækkehus
Type: 3321
|
3 rum
85 kvm |
8.523 | 0 | 19.465 | fra 30 år og op | 5 | ||
Se flere boliger i denne gruppe Se færre boliger i denne gruppe |
Læs mere om selskabet og de øvrige afdelinger