Ventetid: fra 3 år og op

Velkommen til Afd. 7 - Engdraget

Med rolig beliggenhed i attraktivt kvarter, tæt på skole, institution og indkøb, ligger dejlige rækkehuse, hvor pavillonen er centrum for naboskabet.

Boligafdelingen Engdraget er opført i 1972, og er løbende moderniseret med køkken og bad. Der er gode busforbindelser til Esbjerg centrum.

Nørreskoven indbyder til gåture med hunden og ligger mindre end fem minutters gang fra boligerne.

Om afdelingen

Husdyr tilladt?

Husdyr tilladt

Trapper

Nej

Køleskab

Ja

Garager/Carporte

33

Fælles telefon

Nej

Bad

Ja

Byggeår

1973

Komfur

Ja

Udlejning

DAB

Antenne

Nej

Vaskeri

Nej

Køkken

Ja

Internet

Nej

Fjernvarme

Ja

Have

Ja

Karenstid

Ingen

Energimærke

Alle boligtyper i Afd. 7 - Engdraget
Se placering på kort
Vis Vej
Beløbene i kolonnen forbrug er vejledende og kan variere, da de er baseret på tidligere beboeres forbrug.
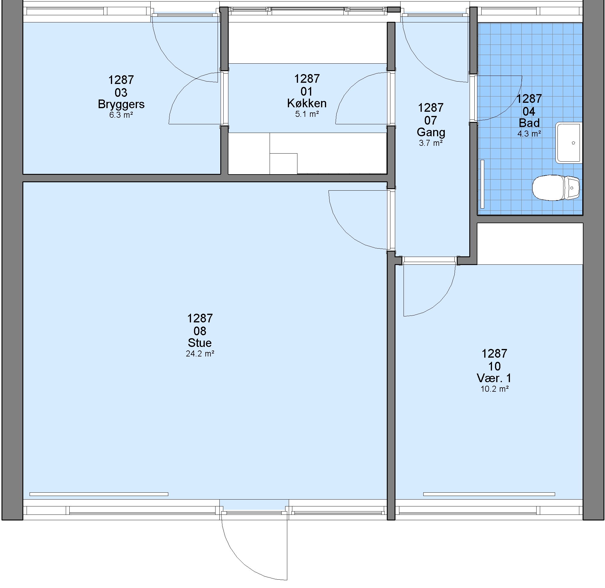
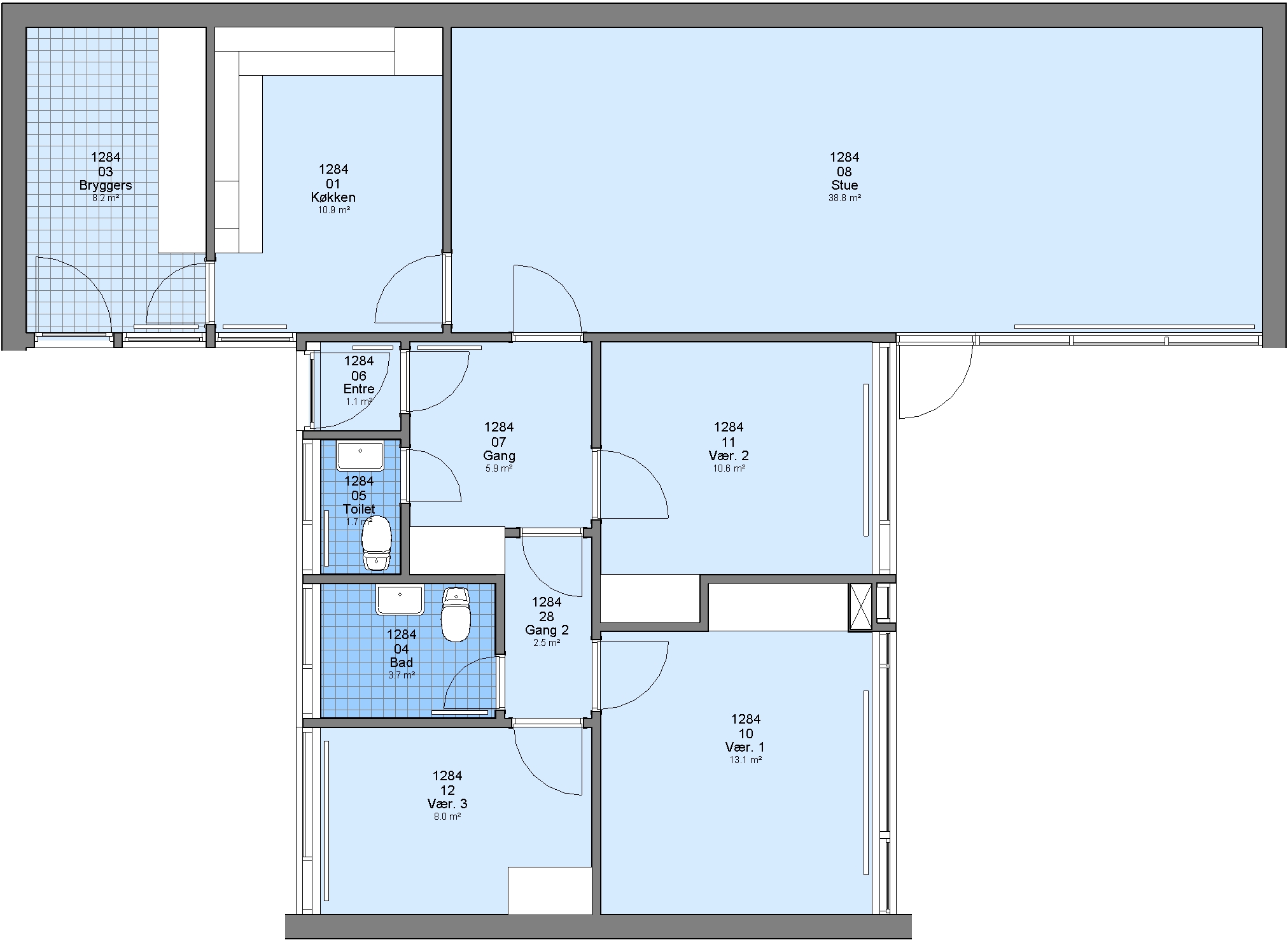
Type Størrelse Husleje Forbrug Indskud Ca. ventetid Plantegning Antal Opskrivning
Se flere boliger i denne gruppe Se færre boliger i denne gruppe

 

Læs mere om selskabet og de øvrige afdelinger

Spørg os

  • Hvor står jeg på ventelisten?

    Du finder din plads på ventelisten ved at logge ind på "Min side" og klikke på fanen "Min boligsøgning" øverst.

    Klik derefter på "Mine opskrivninger" i venstre side af skærmen. 

    Her kan du for hvert boligselskab se, hvilken plads du har på ventelisten til de forskellige boligtyper.

    Klik på "+Vis boliger du er skrevet op til".

    Hvis du ikke kan huske din adgangskode, kan du trykke på knappen "Få din adgangskode." Derefter skal ud indtaste din e-mail adresse eller dit interessentnummer. Hvis dette ikke fungerer, kan du ringe til Servicecentret på telefon 77 32 00 00, hvor du kan få hjælp.

  • Sidst var jeg nr. 50 på ventelisten, hvorfor er jeg nu nr. 52 på ventelisten?

    Din placering på ventelisten kan 'gå op og ned' afhængig af, om de andre personer på ventelisten vælger at være aktive eller stille deres ansøgning i bero. 

    Alle personer på ventelisten er dog placeret efter, hvor længe de har stået på ventelisten.

  • Hvorfor er jeg slettet? Jeg har ikke modtaget et girokort.

    Desværre glemmer mange at oplyse DAB om deres nye adresse, når de flytter. Det betyder, at vi ikke kan sende dem et girokort til genopskrivning og de bliver slettet fra ventelisten. HUSK derfor altid, at du skal meddele DAB din ny adresse. 

    Husk, at du automatisk bliver slettet fra ventelisten når du får tildelt en bolig.

    Husk at give DAB besked, hvis du flytter mens du står på venteliste hos os til en bolig. Ellers kan vi ikke sende dig et nyt girokort, når det bliver tid til genopskrivning. Betaler du ikke til tiden, bliver dit navn slettet fra ventelisten.


  • Hvor står jeg på ventelisten?

    Du finder din plads på ventelisten ved at logge ind på "Min side" og klikke på fanen "Min boligsøgning" øverst.

    Klik derefter på "Mine opskrivninger" i venstre side af skærmen. 

    Her kan du for hvert boligselskab se, hvilken plads du har på ventelisten til de forskellige boligtyper.

    Klik på "+Vis boliger du er skrevet op til".

    Hvis du ikke kan huske din adgangskode, kan du trykke på knappen "Få din adgangskode." Derefter skal ud indtaste din e-mail adresse eller dit interessentnummer. Hvis dette ikke fungerer, kan du ringe til Servicecentret på telefon 77 32 00 00, hvor du kan få hjælp.

  • Sidst var jeg nr. 50 på ventelisten, hvorfor er jeg nu nr. 52 på ventelisten?

    Din placering på ventelisten kan 'gå op og ned' afhængig af, om de andre personer på ventelisten vælger at være aktive eller stille deres ansøgning i bero. 

    Alle personer på ventelisten er dog placeret efter, hvor længe de har stået på ventelisten.

  • Hvorfor er jeg slettet? Jeg har ikke modtaget et girokort.

    Desværre glemmer mange at oplyse DAB om deres nye adresse, når de flytter. Det betyder, at vi ikke kan sende dem et girokort til genopskrivning og de bliver slettet fra ventelisten. HUSK derfor altid, at du skal meddele DAB din ny adresse. 

    Husk, at du automatisk bliver slettet fra ventelisten når du får tildelt en bolig.

    Husk at give DAB besked, hvis du flytter mens du står på venteliste hos os til en bolig. Ellers kan vi ikke sende dig et nyt girokort, når det bliver tid til genopskrivning. Betaler du ikke til tiden, bliver dit navn slettet fra ventelisten.


  • Vi kan desværre ikke finde et svar til dig.

    Forsøg at formulere dit spørgsmål anderledes, eller kontakt os

  • Se flere svar